Have any questions?
+44 1234 567 890
STADTHAUS IN 16278 ANGERMÜNDE !!VERKAUFT 2025!!
Objektangaben
Immobilienbeschreibung
Immobilienbeschreibung
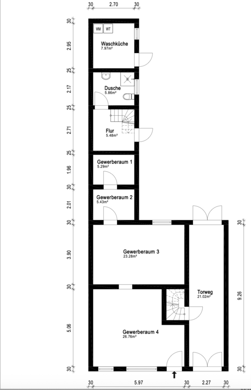
Dieses charmante Stadthaus aus dem Jahr 1848 vereint historische Fachwerkarchitektur mit fortlaufender Modernisierung. Auf einer Grundstücksfläche von 579 m² bietet die Immobilie eine gelungene Kombination aus Wohnen und Arbeiten: Im Erdgeschoss befindet sich eine attraktive Gewerbeeinheit, die derzeit als Juweliergeschäft genutzt wird (monatliche Kaltmiete 512€), während die oberen Etagen mit einer großzügigen Wohnfläche von ca. 120 m² überzeugen. Das Dachgeschoss ist bereits teilweise ausgebaut und als Gästezimmer genutzt.
Das Wohnhaus verfügt über 4 Zimmer sowie 2 modernisierte Bäder, die sich auf zwei Etagen verteilen. Große Fenster und der klassische Fachwerkstil schaffen eine helle, einladende Atmosphäre.
Ausstattung & Modernisierungen:
- Gasheizung Wohnhaus: 1992 erneuert
- Neue Heizungsanlage Gewerbeeinheit: 2024
- Dach und Fassade: 2006 saniert
- Fenster Straßenfront 2004 erneuert
- Nebengelass mit Werkstatt für Hobby oder Handwerk
- Remise mit Garage für zusätzliche Nutz- und Stellfläche
Die Immobilie ist durch ihre kontinuierlichen Renovierungen in einem gepflegten Zustand und bietet den idealen Rahmen für Eigennutzer oder eine Kombination aus Wohnen und Arbeiten.
Ausstattungsbeschreibung
Ausstattungsbeschreibung
Verschiedenes
Verschiedenes
Es handelt sich hierbei um ein provisionspflichtiges Angebot. Durch den KÄUFER ist eine Maklerprovision in Höhe von 3,57% des notariell beurkundeten Kaufpreises (inkl. 19% gesetzl. MwSt.) zu zahlen. Weitere 3,57% des notariell beurkundeten Kaufpreises (inkl. 19% gesetzl. MwSt.) sind vom VERKÄUFER zu zahlen.
Trotz sorgfältiger Überprüfung weisen wir daraufhin, dass die Unterlagen, Pläne etc. direkt vom Eigentümer stammen und wir für die Richtigkeit oder Vollständigkeit der Angaben keine Haftung übernehmen. Zwischenvermietung, Irrtum, Auslassung und Änderung sind vorbehalten.
Dieses Exposé ist nur für Sie persönlich bestimmt. Eine Weitergabe an Dritte bedarf unserer ausdrücklichen Zustimmung. Alle Gespräche sind über die Thomas Lüke & Christian Dietze, Immobilien, GbR (LD Immobilien) zu führen. Bei Zuwiderhandlung behalten wir uns Schadenersatz bis zur Höhe der Provisionsansprüche ausdrücklich vor. Zwischenvermietung ist nicht ausgeschlossen.




